Designing The Initial Layout

Whatever good things we build end up building us.

FIRST MEETING WITH ARCH

Through this process I learned that architecture drawings are MUCH harder than I ever imagined. I never thought I would have to call the SC Cosmetology Board to find out how many feet has to be between each stylist chair. I had my own vision of the salon, but the county codes and state regulations over ruled my vision.

WE HAVE SOMETHING TO LOOK AT

Seeing your vision on paper is such a surreal feeling. It is very exciting, scary, and frustrating. It is frustrating when you try to explain a “vision” in your head to someone who envisions everything through CAD (architecture software for drawings).

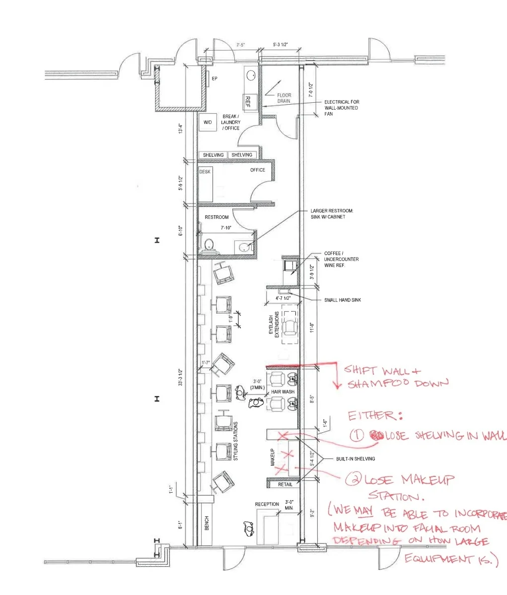
PLAYING CHESS

Now that we have our vision on paper, it is time to make the space work. Making sure there is enough retail space for products and separating the shampoo bowls from the hairdryers for a more relaxing experience.

MOVING PIECES

My favorite drawings were the “options.” Giving me three different options made the process helpful. It also sparked new ideas that I never would have thought of.

BINGO

Now that the final drawings are complete, the waiting process begins again. Hopefully, the county will approve the drawings and the general contractor can start building the dream.